
(7天*24小时)
传真:0534-2468788
地址:山东德州市东风西路1501号
邮箱:sdgljxc@163.com
邮编:253000

模块式双密封板式桥梁伸缩装置,是一种依托JT∕T 327-2016 《公路桥梁伸缩装置通用技术条件》标准中MB型模数式和SC悬臂梳齿板式伸缩装置,设计的一种以无齿悬臂板为主要构件,防尘、防水分开的全新结构。适用于纵向桥梁伸缩装置和小伸缩量的横向桥梁伸缩装置,因结构简单又是模块化设计,所以安装、维护、更换都很方便。
模块式双密封板式伸缩装置
模块式双密封板式桥梁伸缩装置,是一种依托JT∕T 327-2016 《公路桥梁伸缩装置通用技术条件》标准中MB型模数式和SC悬臂梳齿板式伸缩装置,设计的一种以无齿悬臂板为主要构件,防尘、防水分开的全新结构。适用于纵向桥梁伸缩装置和小伸缩量的横向桥梁伸缩装置,因结构简单又是模块化设计,所以安装、维护、更换都很方便。主要结构如下:
一、焊接锚固型
1、结构图


2、特点
主要由异型钢板、车道锚栓、防砂、尘、异物橡胶条、整体防排水系统组成。异型钢是在悬臂侧面加工出半圆形沟槽,并在下方组焊橡胶支板形成防尘橡胶的安装卡槽(如图2所示);车道锚栓是根据安装槽口尺寸设计并与异型钢板组焊;防尘橡胶条嵌入在异型钢板槽口内,主要是防止路面杂物进入排水系统;整体防排水系统(如图3所示)由固定锚筋、角钢、防水橡胶条主成,独立安装设计可以灵活的调整防、排水方向,通过安装高度的调整可以穿过横向桥梁伸缩装置确保整体的防水性。
3、优点
1)异型钢板可分段维修、维护,不用封闭交通,可快速更换及修护;
2)防尘橡胶条可防止砂尘异物进入并易清理,防水橡胶条整体安装无杂物进入和堆积,可确保排水的通畅比模数式更可靠;
3)结构简单、安全、可靠、无断梁危险。


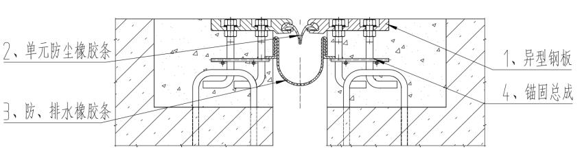
二、螺栓锚固
1、结构图


2、特点
主要由异型钢板、防尘橡胶条、防排水橡胶条、锚固总成组成。
异型钢板结构与焊接锚固的基本相同,只增加了宽度为螺栓锚固留下空间;防尘橡胶条与防排水橡胶条是通用的;锚固总成是通过模块来固定螺栓与防排水橡胶固定角钢,并在工厂内进行定位组焊,以保证安装时的精度。
3、优点
螺栓锚固结构特点与焊接锚固基本相同,但螺栓锚固可以在不破
除混凝土的情况下进行钢板、双橡胶条的维护和更换。
三、防尘与防、排水橡胶条分开设置的特点
作为纵向桥梁伸缩装置应用时,可保证防水的完整性和可更换性。特别是在纵、横桥梁伸缩装置交叉时,横向桥梁伸缩装置的防水橡胶条需在纵向桥梁伸缩装置处断开,水会在断开处排出,但纵向桥梁伸缩装置下层的防排水橡胶条是整体的,所以我们在施工时可以将横向桥梁伸缩装置的流水引到下层的防排水橡胶条上,从而达到双向防水的做用。

作为横向桥梁伸缩装置应用时,能保证防水的可靠性,因一般模数缝胶条经常出现破损现象。
桥梁附件产品咨询邮箱:sddzlhj@126.com